Frigidaire Gas Range PLGF389CCB Timer Repair

What is the timer/clock part number for the Frigidaire PLGF389CCB Gas Range?

Timer part number 316207603 for Frigidaire PLGF389CCB

The PLGF389CCB Gas Range uses timer part number 316207603.

Do you have a failed Frigidaire PLGF389CCB control panel? Click here:

Request Appliance Timer Service

We can repair or replace your faulty Frigidaire PLGF389CCB timer.

PLGF389CCB are also sometimes referred to using these Alternative Names/Model numbers

Electrolux PLGF389CCB Gas Range

PLGF389CCB Schematic and Wiring Diagrams

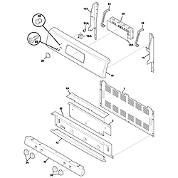
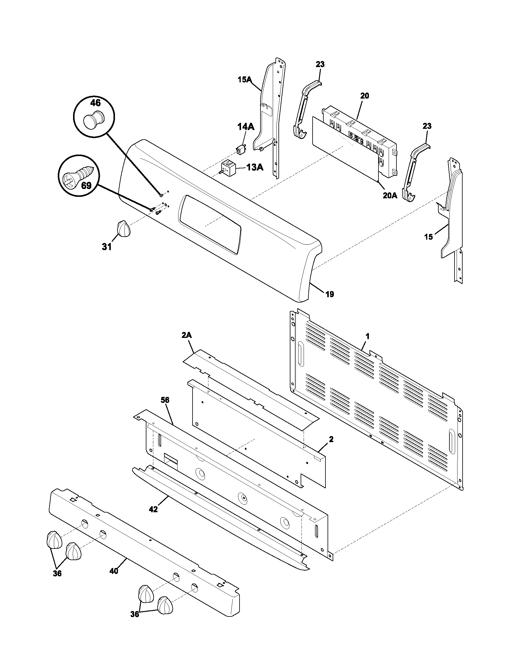
Backguard Parts diagram
PLGF389CCB Gas Range Backguard Parts diagram
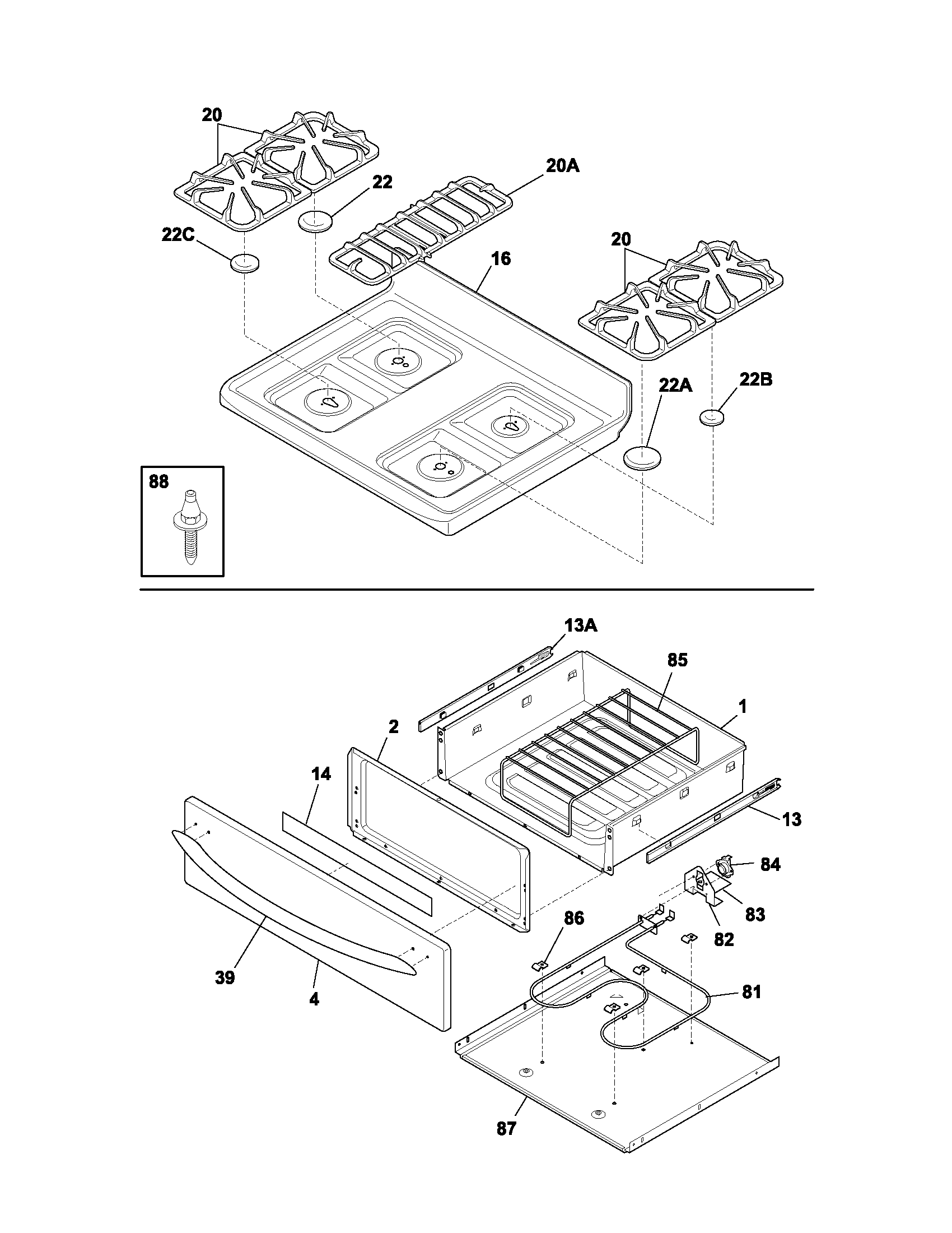
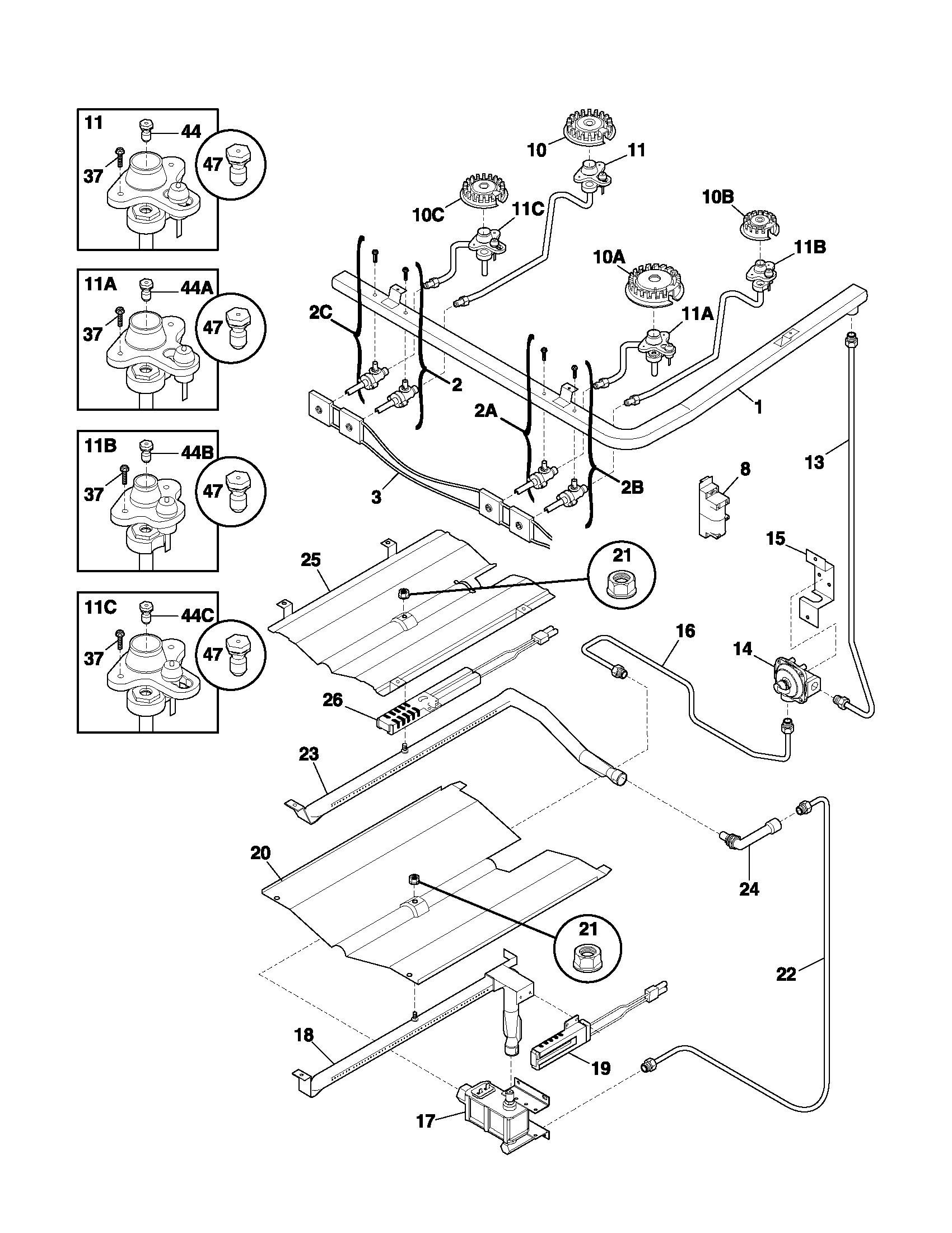
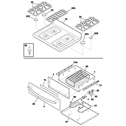
Burner Parts diagram
PLGF389CCB Gas Range Burner Parts diagram
Body Parts diagram
PLGF389CCB Gas Range Body Parts diagram
Top/drawer Parts diagram
PLGF389CCB Gas Range Top/drawer Parts diagram
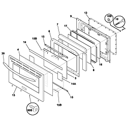
Door Parts diagram
PLGF389CCB Gas Range Door Parts diagram
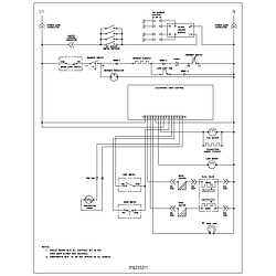
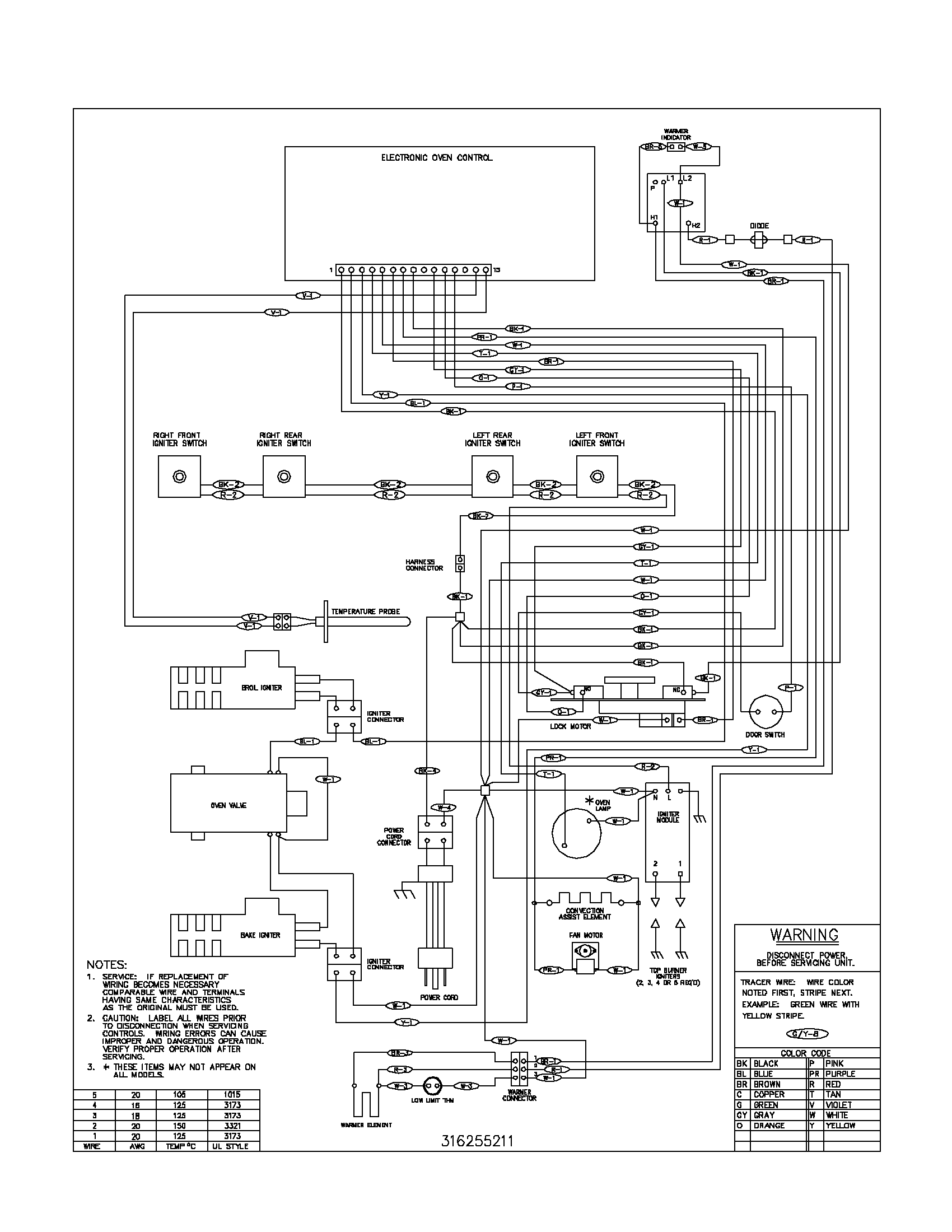
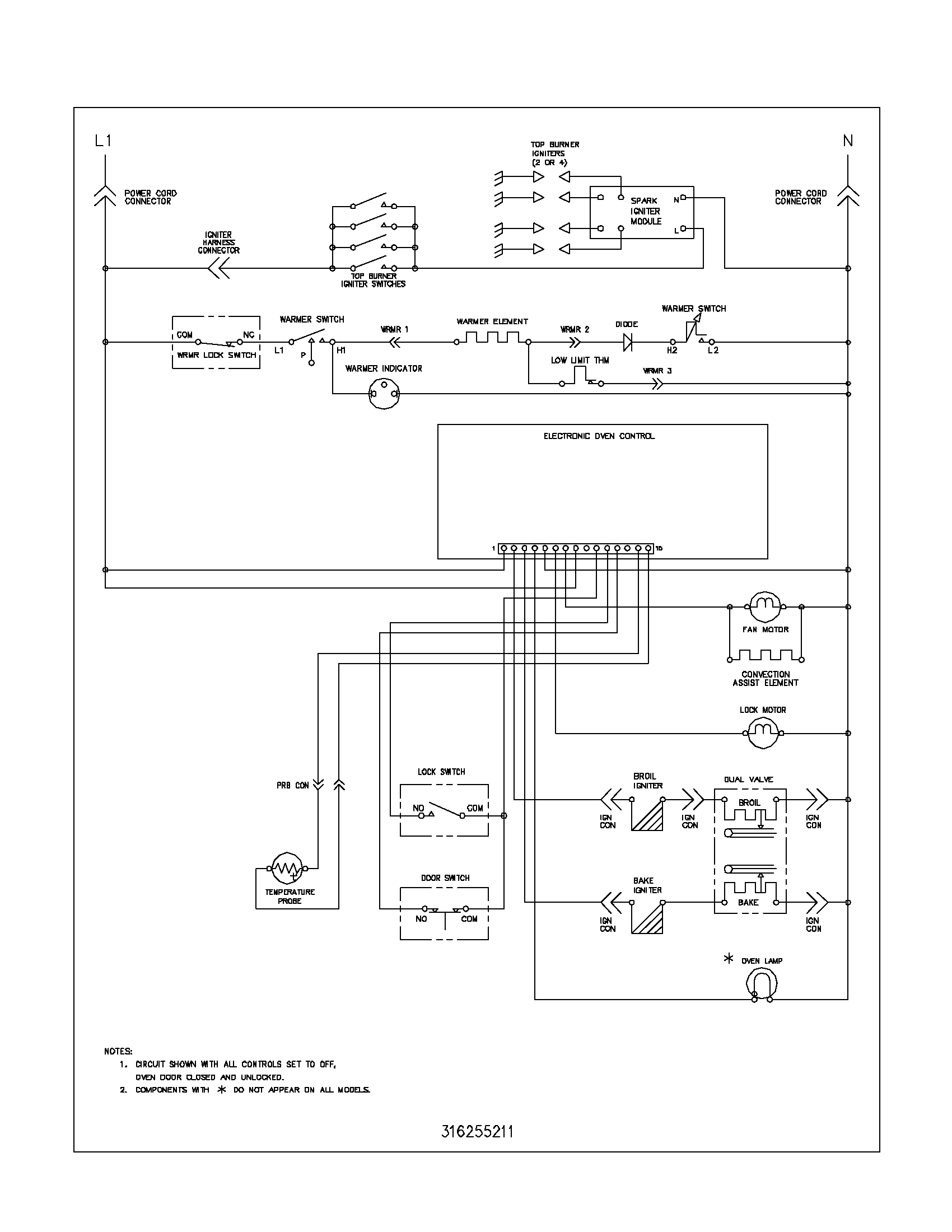
Wiring diagram Parts diagram
PLGF389CCB Gas Range Wiring diagram Parts diagram
Wiring schematic Parts diagram
PLGF389CCB Gas Range Wiring schematic Parts diagram

Recent Service Requests

CityProblem DescriptionResolution
VANCOUVER, British ColumbiaWe are getting a F3 fault code which I believe the most common error is the temp sensor which I ordered and replaced. The error F3 is still recurring. The next stepis to check the Electronic oven control.Repaired
Ajax, OntarioOven stops heating after 10 or 15 minutesRepaired

Common problems for Frigidaire Gas Range PLGF389CCB Timer Repair

Are you encountering a similar problem as them? Contact us now and we will try to help you fix your PLGF389CCB timer-related problem.
light flashing door locked cooking my TURKEY and a light came on door locked the model number is PLGF389CCB what can i do??????????????? HELP FAST
When I try to turn on the Broiler I get an F13 error code. Oven and everything else works fine. I select broiler and 550 degrees comes up on the panel. When I select "Start" is when I get the F13 code. I cycle the power to the Oven at the breaker panel, and leave off for 30 seconds. Codes goes away and I can use everything on the oven/Oven except the "Broiler" function. I can repeat this over and over. Any advice on what is wrong, and associated part numbers would be greatly appreciated.
Having problem with Frigidair PLGF389CCB oven will not lite. Broiler works fine. Oven is giving me a problem. When I set the tempeture the igniter comes on and I could smell gas but the valve will not let the gas flow unless I tap it. If I tap it the gas flows then I tap it again and the gas stops. Also the the igniter stays on the whole time. This is the second igniter I have put in. It sure looks like it is getting brite enough to let the gas flow.
we have frididaire gas oven model # PLGF389CCB---serial #--VF31226190 last nite, while cooking, extreme heat melted the plastic control cover. Now the gas oven won't turn on and we are receiving a message of "F 1" with a continuous beeping noise.
I have a Frigidaire gas oven model plgf389ccb. The oven was lighting intermitently and taking forever to get to temp. The top burners work o.k. and the upper oven burner works o.k. recently the oven would not light at all, the glow bug lights bright ooven and if you tapped the valve it would fire up o.k. I replaced the gas valve and now the oven flame burns extremely high and we get a pretty intense smell of gas. Are there any adjustments that can be made?
I have owned this oven for 1-1/2 years. The oven won't turn on and displays a F13 code. I had the oven looked at by a service tech and was told I have a bad clock ERC. I saw a similar post that said they had a bad sensor probe. What do you think?
Hi, I have a Professional Series oven model: PLGF389CCB, and the oven stared to intermittently not heat properly. Removed the bottom panel and saw that the glow plug ignitor worked but and that the flam was good, but when I cleared and tried to bake again the flame was weak. What can I do t fix it myself?
On my Fridigaire Gas oven model number PLGF389CCB... when you go to start it on "bake" set for any tempurature, the glowing element glows very bright but gas ignition never happens. It has done this over a period of a few months and has sometimes worked. But now it has finally given up. (element still glows but no ignition). Any ideas?? Thanks
I have locked the oven door on the range