Frigidaire Dual Fuel Range FCS388WECA Timer Repair

What is the timer/clock part number for the Frigidaire FCS388WECA Dual Fuel Range?

Timer part number 318012903 for Frigidaire FCS388WECA

The FCS388WECA Dual Fuel Range uses timer part number 318012903.

Do you have a failed Frigidaire FCS388WECA control panel? Click here:

Request Appliance Timer Service

We can repair or replace your faulty Frigidaire FCS388WECA timer.

FCS388WECA are also sometimes referred to using these Alternative Names/Model numbers

Electrolux FCS388WECA Dual Fuel Range

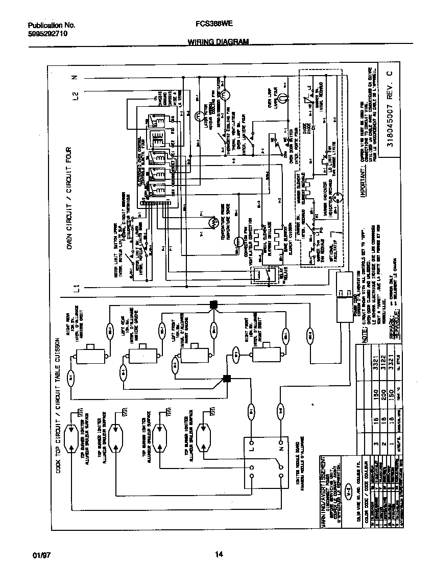
FCS388WECA Schematic and Wiring Diagrams

Cover Parts diagram
FCS388WECA Dual Fuel Range Cover Parts diagram
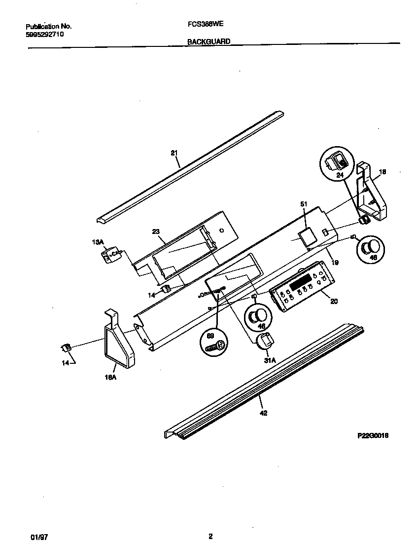
Backguard Parts diagram
FCS388WECA Dual Fuel Range Backguard Parts diagram
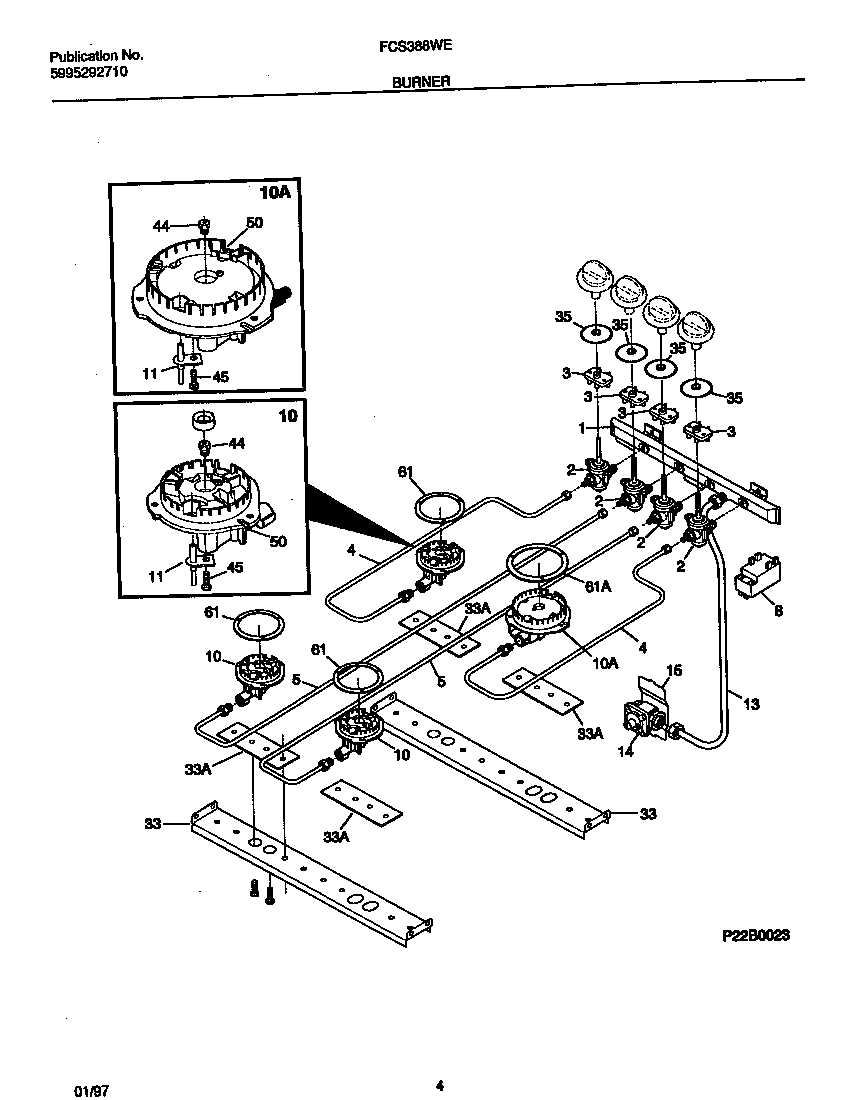
Burner Parts diagram
FCS388WECA Dual Fuel Range Burner Parts diagram
Body Parts diagram
FCS388WECA Dual Fuel Range Body Parts diagram
Top/drawer Parts diagram
FCS388WECA Dual Fuel Range Top/drawer Parts diagram
Door Parts diagram
FCS388WECA Dual Fuel Range Door Parts diagram
Wiring diagram Parts diagram
FCS388WECA Dual Fuel Range Wiring diagram Parts diagram

Recent Service Requests

CityProblem DescriptionResolution
White Lake, MichiganDim temperature displayRepaired
mankato, Minnesotaoven heats slowly constantly clickingRepaired
Mankato, MinnesotaOven heats slowlyRepaired
Finksburg, MarylandTimer is simply dark, does not power up. No display.Repaired
CATAUMET, MassachusettsWILL NOT EXCEPT ANY COMMANDS OTHER THAN SET CLOCK. DISPLAY GOES BLACK WHEN SELECTING BAKE OR VARI BROILRepaired
Riverside, Connecticutstove display/clock is very dimAwaiting receipt of timer
Fort Lauderdale, FloridaIf you have a reconditioned or new in stock, please give price so we can decide if we want to just buy.

Otherwise, we can send in our board - the electric to the oven is working (so it's not the house fuse) but it does not respond pressing any buttons, we had an electrical storm and the power was flickering off/on over and over and the oven board went black after 3 or 4 cycles of this - fried.

* If we have to remove the board, please send a link to how to remove it if possible

Thanks!
Awaiting receipt of timer
Dallas, TexasControl is so dim I can't hardly read it.Awaiting receipt of timer
Dallas, TexasControl is so dim I can't hardly read it.Awaiting receipt of timer
Dallas, TexasControl is so dim I can't hardly read it.Awaiting receipt of timer