Frigidaire Electric Range CFEF372CS2 Timer Repair

What is the timer/clock part number for the Frigidaire CFEF372CS2 Electric Range?

Timer part number 318184400 for Frigidaire CFEF372CS2

The CFEF372CS2 Electric Range uses timer part number 318184400.

Do you have a failed Frigidaire CFEF372CS2 control panel? Click here:

Request Appliance Timer Service

We can repair or replace your faulty Frigidaire CFEF372CS2 timer.

CFEF372CS2 are also sometimes referred to using these Alternative Names/Model numbers

Electrolux CFEF372CS2 Electric Range, CFEF372ES2, CFEF372ES5, CFEF372EQ5, CFEF372ES6, CFEF372ES4, CFEF372EB5, CFEF372EC1, CFEF372EB3, CFEF372EQ1, CFEF372EQ2, CFEF372EC7, CFEF372ES1, CFEF372EQ3, CFEF372EC4, CFEF372EC3, CFEF372ES3, CFEF372BC3, CFEF372EB1, CFEF372EC5, CFEF372EB2, CFEF372EB4, CFEF372EQ4, CFEF372EC6, CFEF372EB6

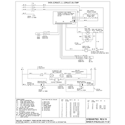
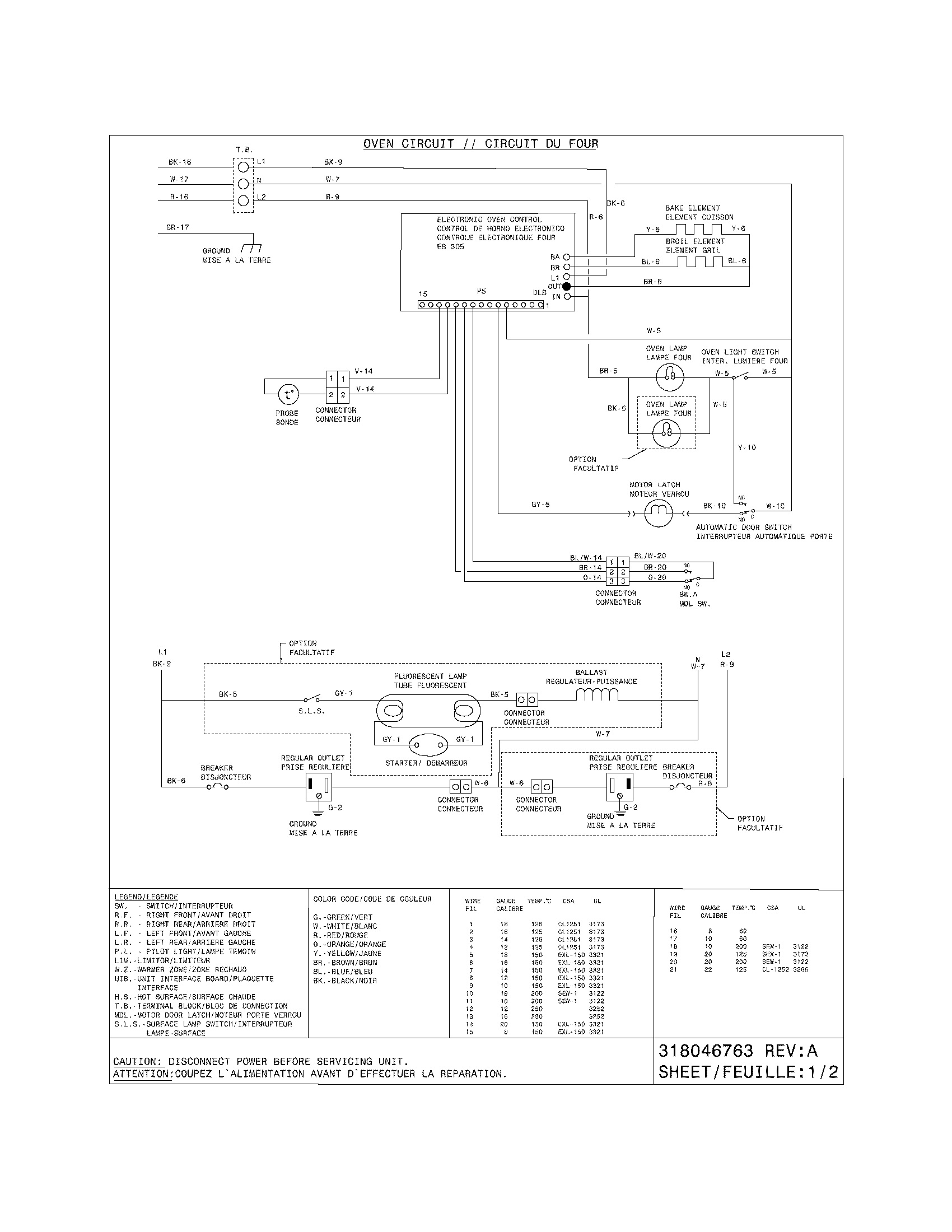
CFEF372CS2 Schematic and Wiring Diagrams

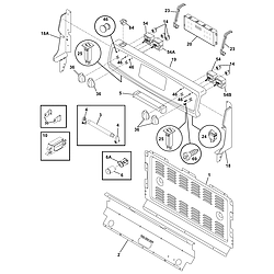
Backguard Parts diagram
CFEF372CS2 Electric Range Backguard Parts diagram
Body Parts diagram
CFEF372CS2 Electric Range Body Parts diagram
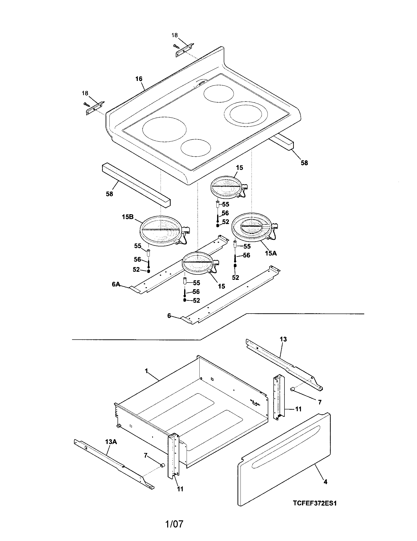
Top/drawer Parts diagram
CFEF372CS2 Electric Range Top/drawer Parts diagram
Door Parts diagram
CFEF372CS2 Electric Range Door Parts diagram
Diagram Parts diagram
CFEF372CS2 Electric Range Diagram Parts diagram
Schematic Parts diagram
CFEF372CS2 Electric Range Schematic Parts diagram

Recent Service Requests

CityProblem DescriptionResolution
St-Jean-sur-Richelieu, Quebectout ce qui est four,broil ne fonctionne pas, je crois que tour a commencer avec probe oven temperature ne fonctionne pas.Repaired
Port Moody, British ColumbiaLoud pop, burners work, oven/panel lights do not. Fuse good.Awaiting receipt of timer
Quebec, QuebecThe timer blewed up. The circuit boards are black face to face.Awaiting receipt of timer
St-Jean-sur-Richelieu, QuebecFOUR NE FONCTIONNE PAS-NI LE BROIL. Le reste sur le dessus fonctionne.Awaiting receipt of timer
Edmonton, AlbertaPop sound. Now the oven won't work, but the stove top still does. The "broil" button on the control panel doesn't work either.Awaiting receipt of timer
Iroquois, OntarioBottom oven element not working. Broil (top) element does work. Resistance tested bottom element gives 16-18 ohms. Attached voltmeter to wires that connect to bottom element, no power when bake selected. Looks to be the control board that has failed.Awaiting receipt of timer
Iroquois, OntarioBottom oven element not working. Broil (top) element does work. Resistance tested bottom element gives 16-18 ohms. Attached voltmeter to wires that connect to bottom element, no power when bake selected. Looks to be the control board that has failed.Awaiting receipt of timer
Saint-Cesaire, QuebecOven doesn’t Work anymoreAwaiting receipt of timer
Cowanville, QuebecBake, Broil and self clean does not work.Replaced with new in-stock timer
Toronto, OntarioDeadBeyond Repair
Saskatoon, SaskatchewanOven/clock is dead.Awaiting receipt of timer
Surrey, BC, British ColumbiaTECHNICIAN SAID BURNED OUT

PLEASE NOTIFY US IF YOU CANNOT FIX IT
Repaired
Porcupine, Ontarioheard loud pop, breaker tripped. Oven no longer gets hot.Replaced with new in-stock timer
Wawanesa, ManitobaOven bake and broil both quit at the same timeReplaced with new in-stock timer
Montreal, QuebecStopped working all of a sudden. Nothing on display and oven does not work.Awaiting receipt of timer
Delson, Quebeccircuity burn Under the black RelaisAwaiting receipt of timer
kingston, Ontarioheard a pop , stove top works oven doesntRepaired
kingston, Ontarioheard a pop , stove top works oven doesntRepaired
Sault Ste. Marie, OntarioF1 Code
Timer flashing and beeping -display F1 Code
timer did not reset when removing power.
Timer electronic board shows signs of blown component
removed timer form stove.
Repaired
stratford, Ontarioblank timer screen no oven functions work, burners work though
range is a Frigidaire however when I looked at placard that has model number it says Electrolux. COuld also send to you and if you have a reconditioned one would just buy that if possible
Beyond Repair

Common problems for Frigidaire Electric Range CFEF372CS2 Timer Repair

Are you encountering a similar problem as them? Contact us now and we will try to help you fix your CFEF372CS2 timer-related problem.
Hi.I have Frigidaire electric oven #cfef372cs2.In the time of cooking we have noticed a noise coming from display board and the power went off in the whole house.I turned the power back on but touch pad control is not working.All the burners are fine.The breakers are OK.Should I check if the power is going to the display board or is there any other way to fix it? Thanks.
I HAVE A FRIGIDAIRE range AND THE ELECTRONIC CONTROL DISPLAY AND THE OVEN DO NOT WORK. THE TOP ELEMENTS ARE OK.
My electric Frigidaire is 6 years old CFEF372CS2; the oven and clock do not work but the burners do. What part do I need?
My range was bought in 2004, I was cleaning the oven, when F9 came on the display, and a clicking sound withing the range. The range had finished cleaning but had not cooled down that much. The range door is lock still. Had to turn range off from breaker because of noise. Does the range need to be preprogramed and if so, is there some way I can do this.
Frigidaire Type 3S5 Cooker. Mod No CFEF372CS2 Serial No. NF40515865. Manufactured Jan/04 Tried to clean oven in auto mode, but code failure appeared F9. Unable to cancel, oven door remains in locked mode. Tried unplugging and reset clock but still shows that we have a door problem and the door remains locked.Instructions suggest to cancel the lockout feature, push Clear Off pad for 3 seconds and the control will unlock the oven door & resume to normal. Tried this but does not work. Wayne. Stony Plain AB.
I'm looking for a Frigidaire CFEF372CS2 manual.
I have a Frigidaire oven model# CFEF372CS2, a few days ago, my mom was baking and a power outage occured and we heard a loud "pop" sound and when the power came back, the oven was no longer functioning, only the "bake" green light was on, no clock, and none of the buttons work, the oven top is working fine, but the inside baking area seems to be dead..... any suggestions? Thank you in advance :)
My oven does not work. The range top does work. Frigidaire 2004, model# CFEF372CS2. The LED light works but the lower element or the broiler element will not turn on. I removed the back plate and noticed burn marks near the temperature probe. I purchased a new probe and replaced it. Both elements still do not turn on.