Kenmore Gas Range 79075902990 Timer Repair

What is the timer/clock part number for the Kenmore 79075902990 Gas Range?

Timer part number 316127901 for Kenmore 79075902990

The 79075902990 Gas Range uses timer part number 316127901.

Do you have a failed Kenmore 79075902990 control panel? Click here:

Request Appliance Timer Service

We can repair or replace your faulty Kenmore 79075902990 timer.

79075902990 are also sometimes referred to using these Alternative Names/Model numbers

Sears 79075902990 Gas Range

79075902990 Schematic and Wiring Diagrams

Backguard Parts diagram
79075902990 Gas Range Backguard Parts diagram
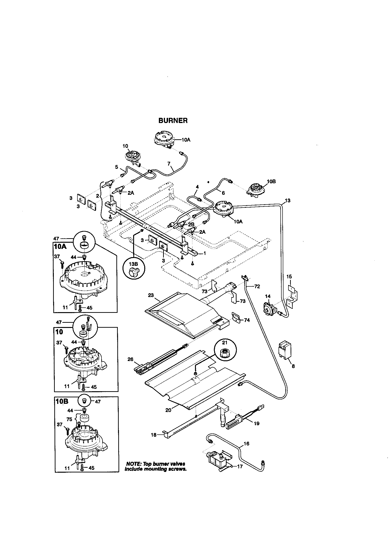
Burner Parts diagram
79075902990 Gas Range Burner Parts diagram
Body Parts diagram
79075902990 Gas Range Body Parts diagram
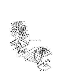
Top/drawer Parts diagram
79075902990 Gas Range Top/drawer Parts diagram
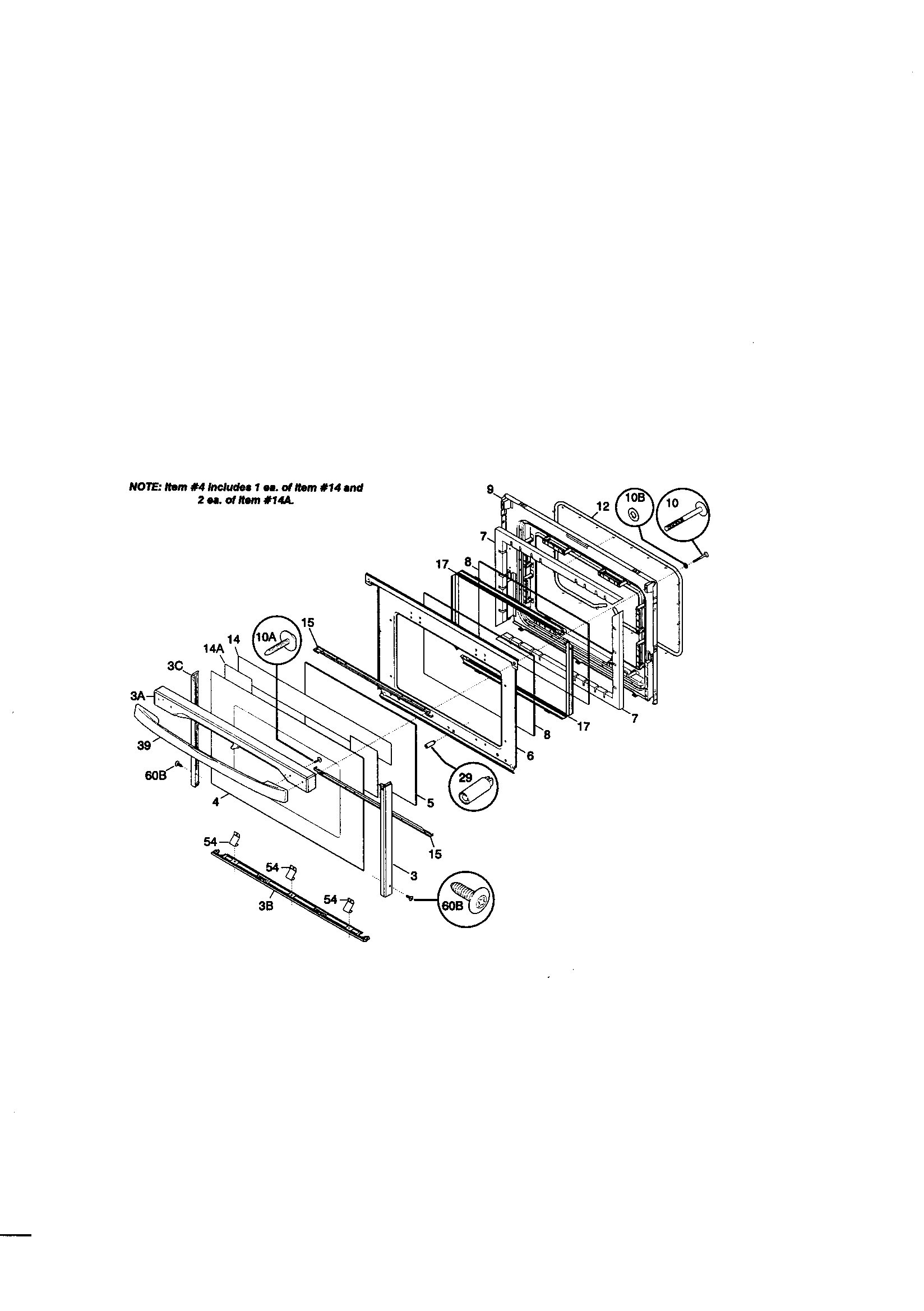
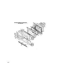
Door Parts diagram
79075902990 Gas Range Door Parts diagram
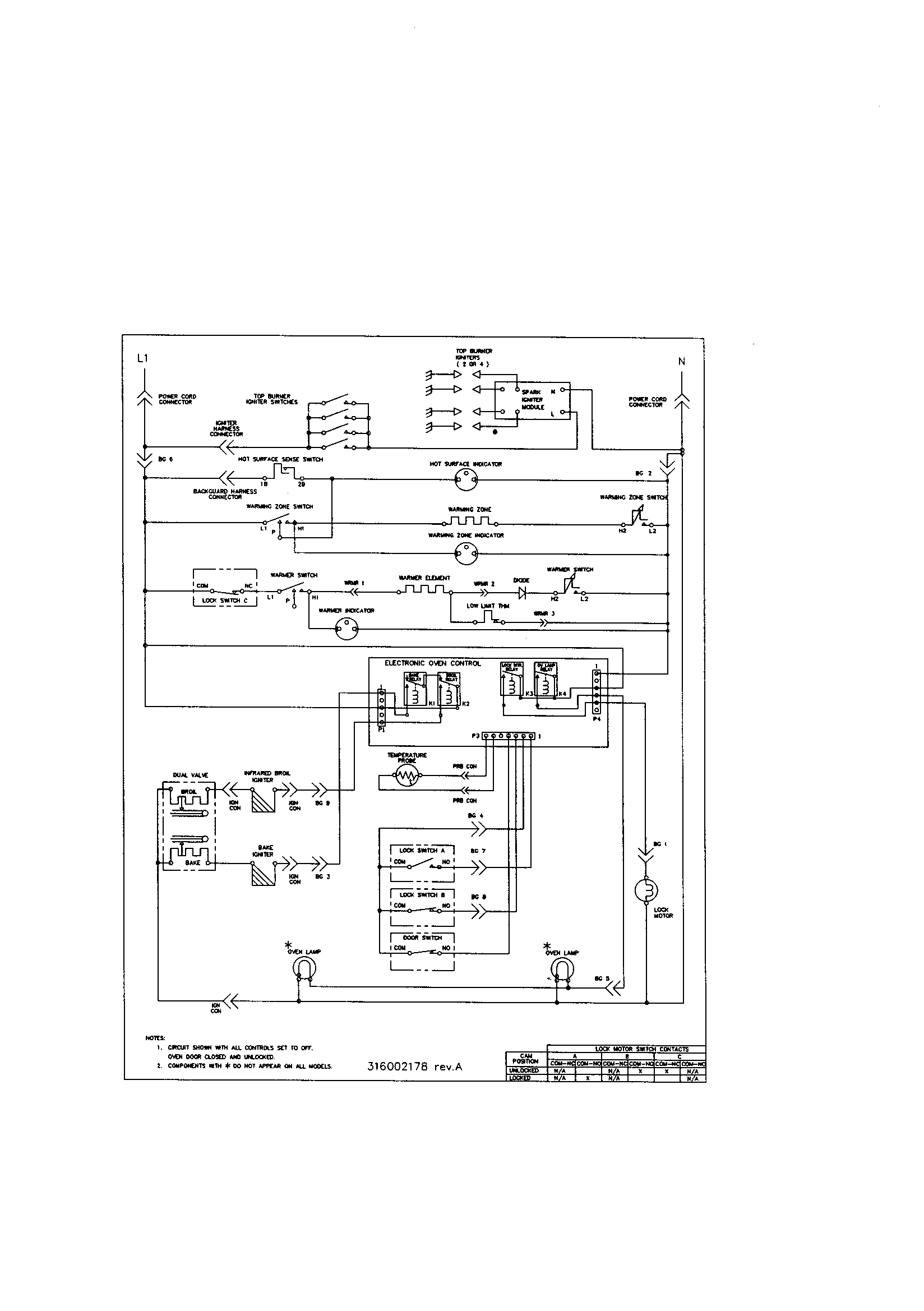
Wiring diagram Parts diagram
79075902990 Gas Range Wiring diagram Parts diagram

Recent Service Requests

CityProblem DescriptionResolution
Milwaukee, WisconsinF1 flashes shortly (1-2minutes) after starting bake.Awaiting receipt of timer
Steamboat Springs, ColoradoWe got an F1 message 6 months ago and replaced the temperature probe. That seemed to fix it until yesterday we have the F1 message again. If this board can't be replaced, would you have one in inventory and what would it cost?Timer inspected, no repairs necessary
Milwaukee, Wisconsincan't programAwaiting receipt of timer